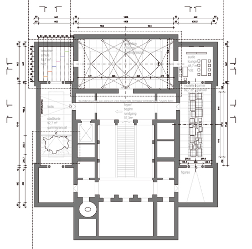
>architektur >interieur-prototypen >installationen >..."vom nutzen der architektur" >grundriss
grundriss
überblick
< zurück zu ..."vom nutzen der architektur"